|    A Backstage Visit to NBC Radio City, San Francisco, in the 1950’s
by Fred Krock
 
 The Radio Industry in the Early 50's The Golden Age of radio ended gradually in the early 1950’s. The mass exodus of programs to 
television was just beginning. Well known performers like Bob Hope and Jack Benny still had weekly 
network radio shows. Top-40 radio had not yet been invented. Operations at NBC San Francisco Radio 
City were little changed from the days when network radio was king. Almost all of the people who could 
tell us what it was like to work there are gone now. Very few of the NBC engineers or announcers from 
the early 1950’s are still living.
	In the summer of 1952, I attended the Stanford-NBC Radio Institute. Three days a week, classes 
were held in Radio City. A year later I started working in broadcasting in San Francisco.  
	The broadcasting industry in San Francisco at that time was a pseudo-community within the 
larger community, where everyone knew everyone else or knew about everyone else. I belonged to both the announcer’s union,
    AFTRA, and NABET, the NBC engineer’s union. I knew personally most of the 
engineers and many of the announcers who worked at Radio City. 
	This description of NBC Radio City contains personal memories and second hand oral history 
drawn from my recollections of stories told to me by people who worked at Radio City. As with any oral 
history, it suffers from the shortcomings of human memory. If anyone has any additions or corrections, 
please communicate with this web site.    
 NBC's White ElephantThe NBC Radio City building in San Francisco was not owned by NBC. It was built for NBC and 
owned by a San Francisco investor, a dentist named Dr. Barrett. The basement and most of the ground 
floor were used as a public parking garage operated by Dr. Barrett. The upper four floors were used for 
broadcasting. Rumor has it that Dr. Barrett believed that radio was a passing fad, so he had the framework 
of his building designed to allow easy conversion of the rest of the building into a parking garage.
 NBC moved into Radio City in 1942. It moved out when the twenty-five year lease expired in 
1967. The building was a white elephant from the day NBC moved in. It contained ten studios, A through 
J,  plus a news studio with no letter designation. Every studio except news had its own control room. 
	Radio City was originally intended to be the West Coast origination center for NBC. The building 
was much too large for only the two NBC owned radio stations, KGO and KPO (which became KNBC, 
then later KNBR). Both NBC Red and Blue networks were supposed to use these studios.  However, 
most West Coast radio network production had moved to Los Angeles by the time Radio City opened 
in 1942. Radio City San Francisco may have been a white elephant, but it was a beautiful white elephant. 
	Radio City was at the corner of Taylor and O’Farrell Streets in San Francisco. Architecture was 
modern, streamlined style inside and out. The building had no exterior windows. Glass block walls 
allowed daylight into offices on the third and fourth floors. NBC claimed it was one of the first completely 
air-conditioned buildings in San Francisco. A very sophisticated system kept the building at 72 degrees 
with 45 percent relative humidity twenty-four hours a day. The building itself cost over a million dollars, 
plus two hundred thousand dollars for the NBC equipment. 
	Furniture inside the building was art deco design matching the modern architecture. Light 
colored wood was used throughout for wall paneling, room dividers, furniture, doors, and trim. I thought 
Radio City was very attractive inside with the exception of the lobby which was rather gaudy. 
	An NBC release contained these words: "SYMBOL OF SERVICE  -  National Broadcasting 
Company is proud to present this perfect broadcasting plant to the people of San Francisco and to listeners throughout the world who will hear programs from these modern studios. Determined that the 
complete facilities shall enlarge and improve the service of NBC to the people, to the country and to all 
worthy public enterprises, the building is dedicated to all those glorious qualities which make real 
AMERICANISM."   Perhaps this florid rhetoric can be excused since the year was 1942 and the United 
States had just entered World War II. 
 An NBC booklet described the building entrance: "Main entrance is on Taylor Street, near the 
Clift Hotel, beneath a dignified, inviting marquee. An 80-foot tower rises above the entrance, the most 
dramatic feature of which is a great mural panel, 16 by 40 feet. It symbolizes the vast extent of radio and 
the unlimited service it gives to all the lands and all the peoples of the earth." 
	The building was designed for public tours. According to this same NBC booklet: "Show 
windows at either side of the entrance and others inside the main lobby tell the story of radio, and 
publicize programs and radio advertised products." 
	"Such interesting activities as the master control room, news room, traffic, radio recording, are 
visible from the foyers on different floors through large windows, making it possible for visitors to see 
what goes on ‘back stage’ in a broadcasting plant."  Public tours were discontinued some time in the 
1940’s. 
	In 1943 NBC sold KGO and the (NBC) Blue Network as a result of  new FCC rules banning 
ownership by one company of more than one network or more than one radio station in the same market. 
Suddenly KPO and KGO became competitors which continued to share the same building. This required a 
number of changes in Radio City to provide duplicate separate facilities for management, sales, 
accounting, programming, traffic, and news departments for both stations. KGO remained at Radio City 
until 1954, when it moved to new studios on Golden Gate Avenue.   
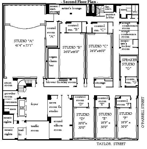
   Take a Tour of Radio CityThe floor plans and photos of Radio City will help you understand the descriptions of Radio 
City which follow. These as-built plans do not show changes which were the result of the sale of
KGO.
 Visitors entered the building through a lobby at 420 Taylor street. A grand curved stairway 
flanked by illuminated curved glass block walls led to the second floor. Two elevators opened into the 
lobby. A receptionist sat at a desk near the entrance doors.  Later the KNBC telephone switchboard 
operator replaced the receptionist to save money. 
	The stairway led to a foyer on the second floor which contained  Studios A through G. Double 
doors to Studio A opened directly into the foyer through a sound lock. Other studios were reached from a 
hallway extending from the foyer. 
	The second floor foyer originally had windows looking into the newsroom and into the traffic 
department. By the 1950’s these windows had been covered with blinds. Both the news and traffic areas 
had been changed as a result of the sale of KGO.  
   Studio AAll studios were full-floating design. Studio floors, interior walls, and ceilings were isolated from 
the building by springs.  Studio A was the largest. It was approximately 71 feet by 41 feet. A low 
stage about two feet high and about twenty feet deep was in one end of the studio. This stage was 
large enough to hold an orchestra of up to about thirty musicians. Studio A could seat an audience 
of 500 people according to an NBC press release. This was a very optimistic figure in my opinion.
 Studio A was designed for programs which were performed in front of a studio audience. Very 
few of these programs originated in San Francisco by 1942, so Studio A rarely was used. Audience 
participation programs such as "Truth or Consequences" would have originated from Studio A when in 
San Francisco. The Bob Hope or Jack Benny programs would have used studio A when they were on 
the road. 
	Studio A was large enough to hold a whole symphony orchestra. The orchestra occupied the 
space where an audience usually sat. The orchestra was seated sideways facing the side wall of the 
studio. Sometimes the "Standard Hour" or the "Standard School Broadcast" would originate in Studio A 
when featuring the San Francisco Symphony and when the Opera House was unavailable. 
	One NBC engineer had a good feel for classical music. With judicious use of the two echo 
chambers at Radio City, he was able to get quite acceptable sound from a symphony orchestra in Studio A. 
It never was designed for this sort of use. 
	Studios A, B, and C had high ceilings approximately sixteen to eighteen feet above the floor. All 
three studios had sponsor’s booths on the third floor which looked over the studios from above. 
	After NBC moved out, KBHK (TV) leased the building. Studio A became a television studio. A 
pipe grid was installed near the ceiling to hold television lights. 
 Studios B and C Studios B and C, at 24 by 44 feet, were about half the size of studio A. Studio B had a three-manual nineteen-rank Wurlitzer theater pipe organ, which spoke into the studio from an adjoining 
organ chamber. An organ this size would have been appropriate for a fairly large theater. 
	The pipe organ had been installed originally at the Paramount (movie) Studios in Los Angeles. 
Several noted theater organists had consulted on voicing this organ for Studio B. It had been used for 
some programs of organ music in the 1940’s, but was no longer used or maintained in playing condition 
by the 1950’s. 
	
 Studio C was identical to Studio B except without a pipe organ. Both these studios were designed 
to be used for drama shows and for programs using small orchestras. 
	 When KGO received a television license in 1949,  Studio C was converted into a television 
studio. The noisy film chain was banished to the sponsor’s booth on the third floor; television projectors 
with 3/2 pulldown made a lot of racket. The rest of the technical equipment was jammed into the existing 
Control Room C. 
 The Masters of Melody"Albert White and the Morris Plan Masters of Melody" broadcast on KNBC from Studio B for 
several years.
	Contracts with the American Federation of Musicians required major networks to employ a 
minimum of twelve musicians at each of its owned and operated stations. Locally, KGO used its musicians 
on television shows. KCBS used musicians on several different programs. KNBC had no programs on the 
air which used musicians, but it had twelve musicians on the payroll. For a while the musicians were 
required to come in and rehearse to get their money. Later that requirement was dropped and the 
musicians were mailed their paychecks at home. 
	Some genius decided, "If we have these clowns on the payroll we might as well use them to make 
some money." The "Masters of Melody" program resulted. This program was sold to the Morris Plan 
Company for only the cost of air time. Morris Plan got a live orchestra at no extra charge, and NBC 
received additional advertising revenue it would not have gotten otherwise. 
	The "Masters of Melody" played dinner music for a half hour five nights a week. The orchestra 
essentially was an augmented string quartet with a harp, winds, piano and Hammond organ (the 
theater organ was not used). The NBC library had plenty of sheet music.  
	This program was so successful for the Morris Plan Company that the sponsor wanted to extend  
the broadcasts to other West Coast cities where it had offices. NBC could not supply a network, since it 
had closed the NBC Pacific Network in 1952. CBS could supply a regional network, so the program 
moved to KCBS and the CBS Pacific Network. It lasted until the networks were able to negotiate 
contracts with the musicians' union which did not require orchestras at all owned stations. 
 Studios D, E F and G Continuing down the hall on the second floor, Studios D, E, and F were on the Taylor Street side.
These smaller studios were approximately 20 feet by 30 feet. Ceiling height was about eight feet. These 
studios did not have sponsor’s booths, nor could they accommodate studio audiences. They were used for 
programs which required only a few announcers or performers. A program such as the news commentary 
of  H. V. Kaltenborn would have originated in one of these studios. By the 1950’s, studios E, F, and their 
control rooms were being used as offices. 
 At the end of the hall was Studio G, the most interesting small studio of all. Studio G was 
furnished to look like the living room of a fashionable 1940’s home. It had a carpet on the floor, drapes on 
the control room window, a sofa with end tables and table lamps, a coffee table, an overstuffed chair, 
several other upholstered chairs, a floor lamp, and an RCA console radio against one wall. (The radio 
didn’t work.) 
	The theory was that a person who was not a broadcasting professional would have less mike 
fright in a room similar to a home than in a radio studio. Studio G was used for speeches and for
interviews with people who were not broadcasters. KNBC broadcast a womens’ program weekday 
mornings. It usually originated in Studio G.  
	In Studio G you could feel the building shake when a cable car went past outside on O’Farrell 
street, in spite of the spring mounted studio floor. 
CLICK HERE TO GO TO PART TWO OF THIS ARTICLE |